Anaïs EPAGNOUX Négociatrice
Vendu

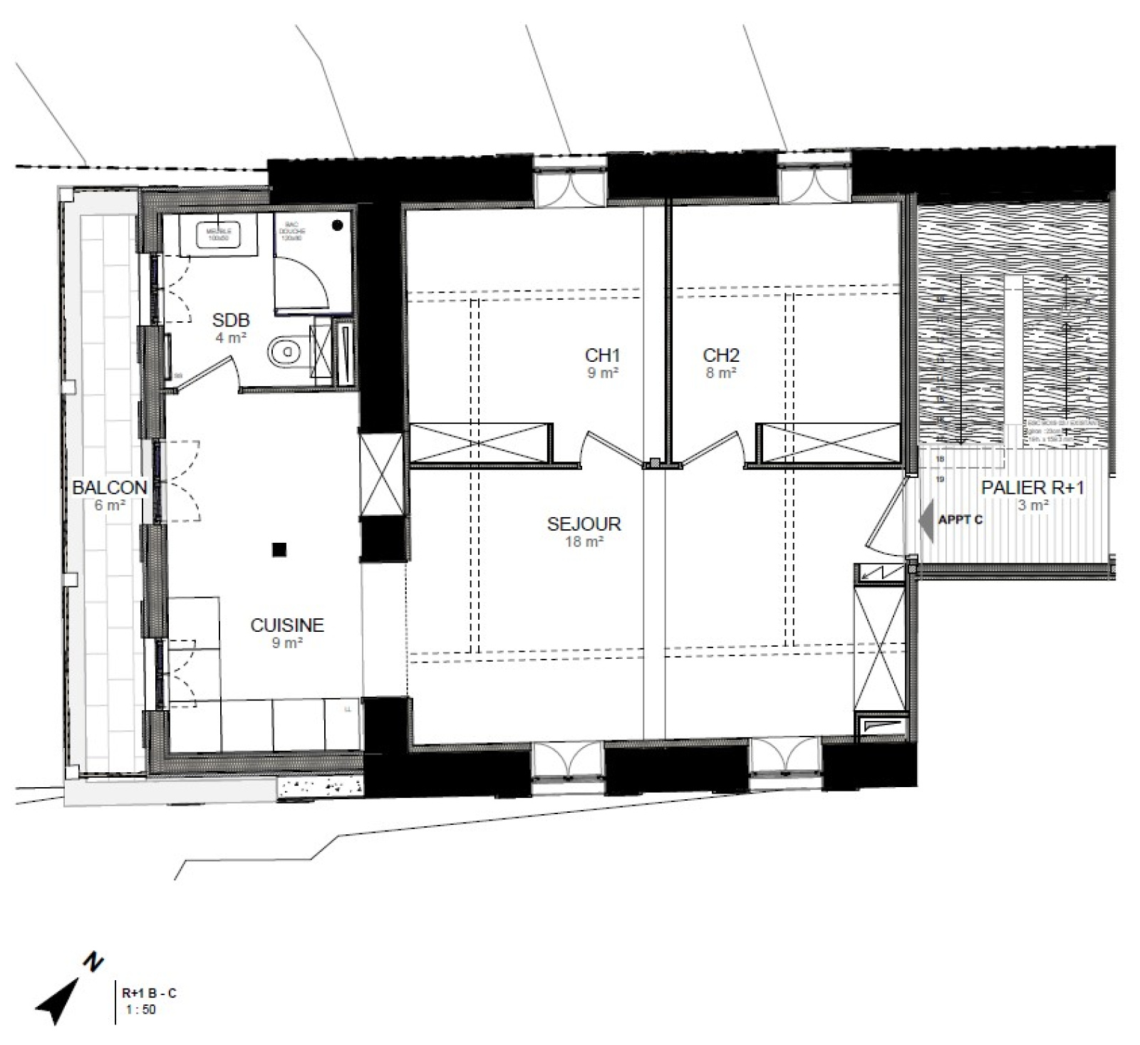
Appartement 3 pièce(s) 2 chambre(s) 48 m²

Argelès-Gazost (65400)
Référence 2364C

A propos de ce bien

ARGELES-GAZOST - Appartement de type 3 d'une surface de 53m² + balcon, parking et cellier.

Sur les hauteurs d'ARGELES-GAZOST, sur un versant ensoleillé offrant une vue dégagée sur la vallée :
Appartement de type 3 en cours de rénovation totale, d'une surface de 48m² environ (voir plan).
Ce lot disposera d'un balcon, d'une place de parking et d'un cellier privatifs.

Situé au premier étage d'une petite copropriété de 7 lots principaux, il profite d'une exposition SUD-EST/SUD-OUEST.

La maison Bigourdane, typique et en pierres, est en cours de rénovation totale : toiture, façade, isolation...
L'appartement disposera de prestations de qualité (travaux soumis à garanties décennales), entièrement rénové : électricité, plomberie, isolation, menuiseries...

Le prix de vente comprend l'aménagement complet avec peintures et cuisine comprises.
Copropriété à faibles charges.

DPE vierge (en cours de rénovation)

Plus de détails et d'informations sur demande.

Caractéristiques de ce bien

  • Surface 48 m²
  • carrez 48 m²
  • séjour 18 m²
  • 2 chambre(s)
  • 1 salle(s) d'eau
  • Chauffage individuel : radiateur (electrique)
  • 1 parking(s)
  • exposition Sud
  • 1 niveau(x)
  • 1er étage
  • 2 étage(s)
  • vue Montagnes
  • balcon

Diagnostics énergétiques

Consommation énergétique
A B C D E F G
Emission de gaz à effet de serre
A B C D E F G
DPE vierge

Autour du bien

  • Commerces et santé
  • Loisirs
  • Ecoles
  • Transports
  • Pratique

Calcul des mensualités

* Champs obligatoires