Anaïs EPAGNOUX Négociatrice
Vendu

Maison 8 pièce(s) 6 chambre(s) 235 m²

Argelès-Gazost (65400)
Référence 2308

A propos de ce bien

EXCLUSIVITÉ AGENCE - ARRENS-MARSOUS - Charmante maison de 1642 d'une surface de 235m² au sol et terrain de 1.900m² environ.

En plein coeurdu village de ARRENS MARSOUS dans le Val d'Azun, village avec commerces et école, et à 15 min seulement d'ARGELES-GAZOST, découvrez sans attendre cette charmante maison édifiée en pierres en 1642.

Cette bâtisse de charme détient un potentiel de plus de 238m² au sol.
Sur un joli terrain plat et arboré de plus de 1900 m².

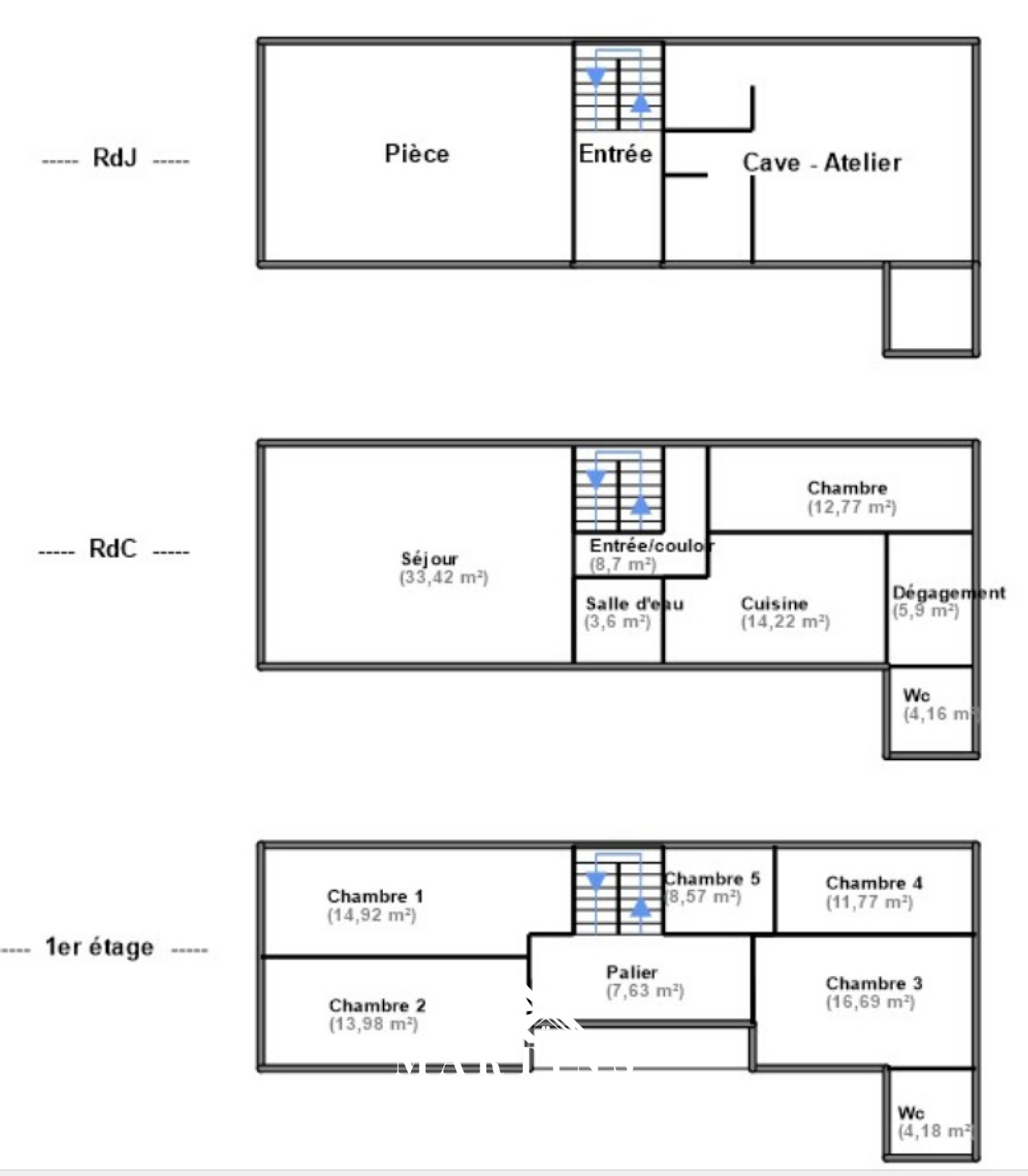
Elle est composée, en rez-de-chaussée d'une pièce de 32 m² avec cheminée et d'une grande remise à l'état brut à aménager.
Au premier étage, une pièce de vie avec cheminée, une cuisine séparée, une chambre, une salle de bains et WC séparés.
Au deuxième étage, un palier dessert 5 grandes chambres, une salle d'eau avec WC et une grande terrasse couverte exposée EST.

Des travaux sont à prévoir !
Toiture en ardoises naturelles refaite il y a moins de 10 ans.

Calme et verdure assurés !
De nombreux beaux projets possibles.

DPE vierge : pas de système de chauffage fixe (uniquement cheminées à foyer ouvert).

Plus de renseignements sur demande et visites sur rendez-vous.

Caractéristiques de ce bien

  • Surface 235 m²
  • carrez 235 m²
  • terrain 1 900 m²
  • séjour 33 m²
  • 6 chambre(s)
  • 2 salle(s) de bain
  • construit en 1642
  • cuisine séparée
  • Chauffage autre : cheminée (bois)
  • exposition Sud
  • 3 niveau(x)
  • vue Montagnes
  • terrasse

Diagnostics énergétiques

Consommation énergétique
A B C D E F G
Emission de gaz à effet de serre
A B C D E F G
DPE vierge

Informations financières

Taxe foncière annuelle 1 000 €

Autour du bien

  • Commerces et santé
  • Loisirs
  • Ecoles
  • Transports
  • Pratique

Calcul des mensualités

* Champs obligatoires